Abingdon, Oxfordshire
Property information
Property Summary
Property Features
- Part Exchange available
- Community living
- Part furnished
- Over 50s
- Garden space
- Pre-owned park home
- Outstanding location
- Rural Location
- Residential park
- Established park
Full Details
THE HOME
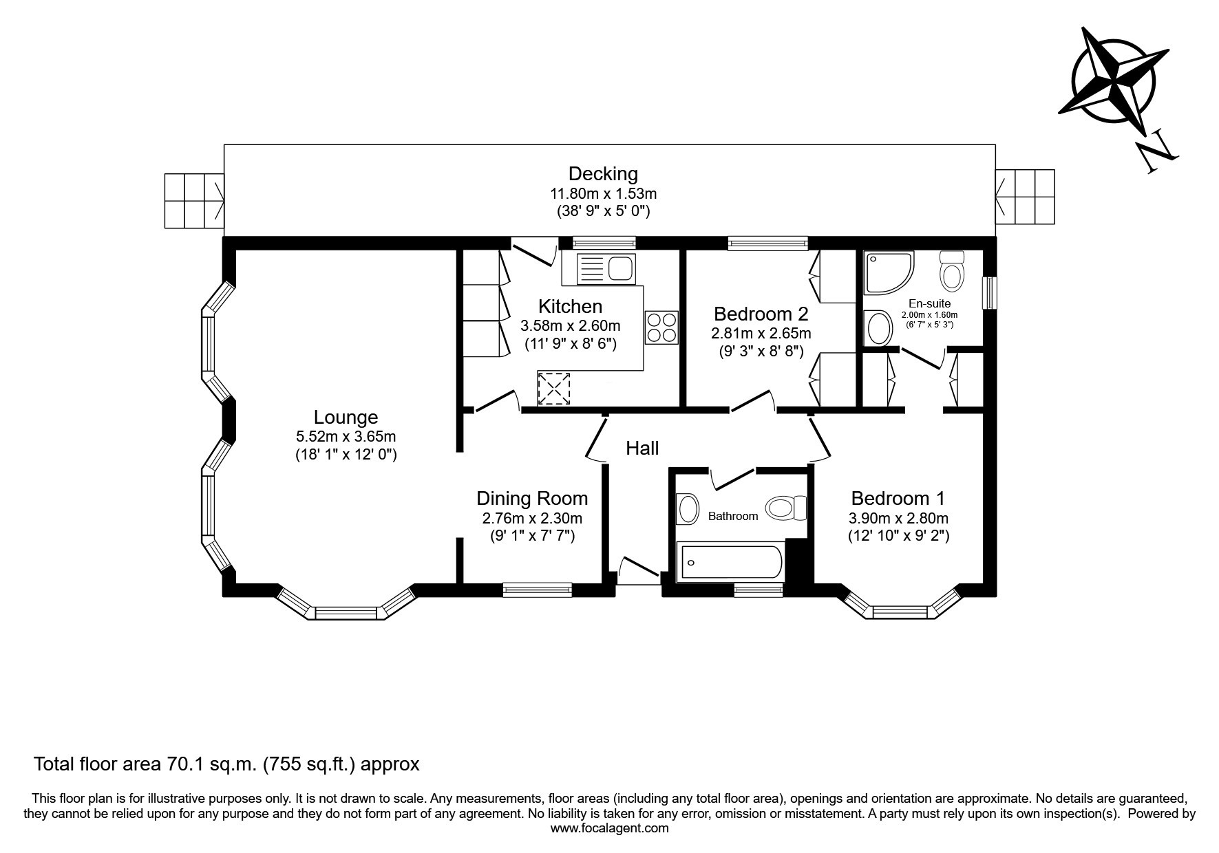
This pre-owned, vacant, modern Omar (40'x18') luxury park home is perfect for those looking for a detached, easy-to-maintain, bungalow-style property. The home has a modern kitchen with integrated appliances, dining area and comfortable living room. The master bedroom has an en suite and a dressing area, there is a second double bedroom and bathroom. The home has a garden space with astro-turf, shed, decking with countryside views and two parking spaces.
THE PARK
This charming residential park is set in beautiful rural surroundings, overlooking areas of outstanding beauty. The home are exclusive for those over 50 and is the perfect place to spend a relaxing and quiet retirement and is tucked away at the end of a lane, this park is ideally located to provide peace and tranquillity and yet the bustling University town of Oxford is just five miles away and the market town of Abingdon-on-Thames is only two miles away.
THE AREA
Abingdon-on-Thames is an old market town situated on the west bank of the River Thames, 7 miles downstream of Oxford and has historical and archaeological connections. Excavations have shown Abingdon-on-Thames to be the oldest continuously inhabited settlement in England with evidence of Iron Age, Roman and Saxon Settlements. Places of interest include: The County Hall Museum, Christ Church Cathedral and The Abbey grounds, garden and meadow.
Oxford is steeped in history and known mainly for its prestigious university. Whether you visit the Ashmolean Museum, The Pitt Rivers Museum or some of Oxford’s 38 Colleges, there is always something of interest to discover. Feeling a little more energetic? Then hire a punt or a rowing boat, for those who prefer something a little more sedate there is always the scheduled passenger boat service.
Local amenities
ALDI: 2.3 miles
Waitrose: 3.4 miles
Train station: 3.6 miles
Abingdon Hospital: 3.9 miles
HOUSE TO SELL?
Contact Quickmove for a free, no-obligation Part-Exchange valuation on this home. Enjoy a hassle-free move, with no estate agents’ fees or solicitors to pay. You even get to keep the keys to your existing property for 2 weeks after completion, so you can move out at your leisure.
Site fees (at time of listing): £280 per month
Please note that the site fee (also known as pitch fee, or ground rent) is subject to change and reviewed annually. Ground rent can only be increased in line with the Consumer Price Index. For more information, please get in touch.
Tenure: Virtual Freehold
Virtual Freehold means that when buying a park home, you purchase the physical property outright and lease the land it sits on in perpetuity, for the entirety of the time the home is sited. These properties are not mortgageable, if you are uncertain or would like further advice, please consult a solicitor.
Council Tax Band: A
NOTE: The information in this property listing is correct to the best of our knowledge. We recommend any potential purchaser is aware of all details including park rules and conditions before sale completion. We also recommend consulting the Mobile Homes Act 2013 for conditions of any future sale of this property.
Park Home Assist Insurance Services (Part Of Assist Insurance Services Ltd) are Authorised and Regulated by the FCA and Financial Conduct Authority and are one of the UK’s leading providers of Park Home Insurance. As one of the leading providers of Park Home Insurance we provide modern up-to-date policies specifically designed for Park Home Owners, yet pride ourselves on our old fashioned and traditional values where customer service and personal service comes first.
Our residential park home policies are new for old as standard, are underwritten by certain underwriters at Lloyd’s of London and back by our multi-award-winning claims and customer service department.
Our policies provide a combination of excellent comprehensive cover with some unique additional benefits, coupled with very competitive premiums and generous discounts. With numerous optional additional covers, every policy can be personalised to each policyholders personal circumstances, and therefore you only need to pay for what you need, ensuring that that the premium you pay reflects the cover you enjoy.
Request More Details or Viewing
Similar properties demo
Contact us today for more information and viewings.

Contact
Tel: 01604 946 733
Working Hours:
Mon-Fri 9am to 5.30pm
Correspondence Address:
Park Home Search
Royal House
Queenswood
Newport Pagnell Road West
Northampton
NN4 7JJ



















