Ashford, Kent
Property information
Property Summary
Property Features
- Community living
- Pet friendly
- Exceptionally high specification
- Countryside location
- Bus stop nearby
- CCTV
- 12 Month Leisure Licence
- Brand new lodges
- Village amenities nearby
- Over 45s
Full Details
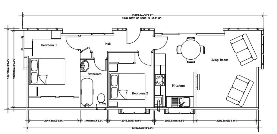
THE LODGE
This brand new, modern-furnished Stately Wentwood (45'x14') luxury lodge is perfect for those looking for a detached, easy to maintain, bungalow-style leisure lodge. The landscaped exterior boasts a large decking and parking. The lodge features a modern kitchen and living spaces. The kitchen has plenty of worktop space and integrated appliances. There are two bedrooms, and a bathroom
THE PARK
This 12-month leisure development lies in a rural location, surrounded by woodland and agricultural land. The development has well manicured gardens, communal spaces and fantastic countryside views. It is exclusive for the over 45s and is pet friendly (2 pets per home).
THE AREA
This development is located in the centre of the Garden of England and surrounded by beautiful countryside, picturesque villages, vineyards and castles. Within easy reach of the park is a golf club, fishing lakes, and Leeds Castle. There is a bus stop down the road, and 1 mile away Biddenden Village with its restaurants, pubs, café, hairdressers, and local shops. Tenterden Village is only 4 miles away, and Ashford Town is 13 miles away. Maidstone, the County Town of Kent, with many amenities and riverside walks is 16 miles away.
Local amenities:
Bus stop: 1 mile
Supermarket: 5.7 miles
Doctors surgery: 8.7 miles
Train station: 13 miles
Site fees (at time of listing): £374.92 per month
Please note that the site fee (also known as pitch fee, or ground rent) is subject to change and reviewed annually. Ground rent can only be increased in line with the Consumer Price Index. For more information, please get in touch.
Water: £12pcm.
Tenure: Leasehold
NOTE: The information in this property listing is correct to the best of our knowledge. We recommend any potential purchaser is aware of all details including park rules and conditions before sale completion.
Park Home Assist Insurance Services (Part Of Assist Insurance Services Ltd) are Authorised and Regulated by the FCA and Financial Conduct Authority and are one of the UK’s leading providers of Park Home Insurance. As one of the leading providers of Park Home Insurance we provide modern up-to-date policies specifically designed for Park Home Owners, yet pride ourselves on our old fashioned and traditional values where customer service and personal service comes first.
Our residential park home policies are new for old as standard, are underwritten by certain underwriters at Lloyd’s of London and back by our multi-award-winning claims and customer service department.
Our policies provide a combination of excellent comprehensive cover with some unique additional benefits, coupled with very competitive premiums and generous discounts. With numerous optional additional covers, every policy can be personalised to each policyholders personal circumstances, and therefore you only need to pay for what you need, ensuring that that the premium you pay reflects the cover you enjoy.
Request More Details or Viewing
Similar properties demo
Contact us today for more information and viewings.

Contact
Tel: 01604 946 733
Working Hours:
Mon-Fri 9am to 5.30pm
Correspondence Address:
Park Home Search
Royal House
Queenswood
Newport Pagnell Road West
Northampton
NN4 7JJ











