Barlestone, Warwickshire

£215,000
Residential

Property information

Property Summary

BRAND NEW Park Home (36x18) | Small Residential Development | Two Bed Home | Over 50s | Pet Friendly | Village Location | Community Living for Like Minded People | Fully Furnished | Built to a High Specification | Modern Home | High Specification | Part Exchange Available | Family Run Park

Property Features

  • Part Exchange available
  • Fully furnished
  • Pet friendly
  • Residential development
  • Over 50s
  • Brand new home
  • Village location
  • Small exclusive development
  • Village facilities nearby
  • Integrated appliances

Full Details

THE HOME
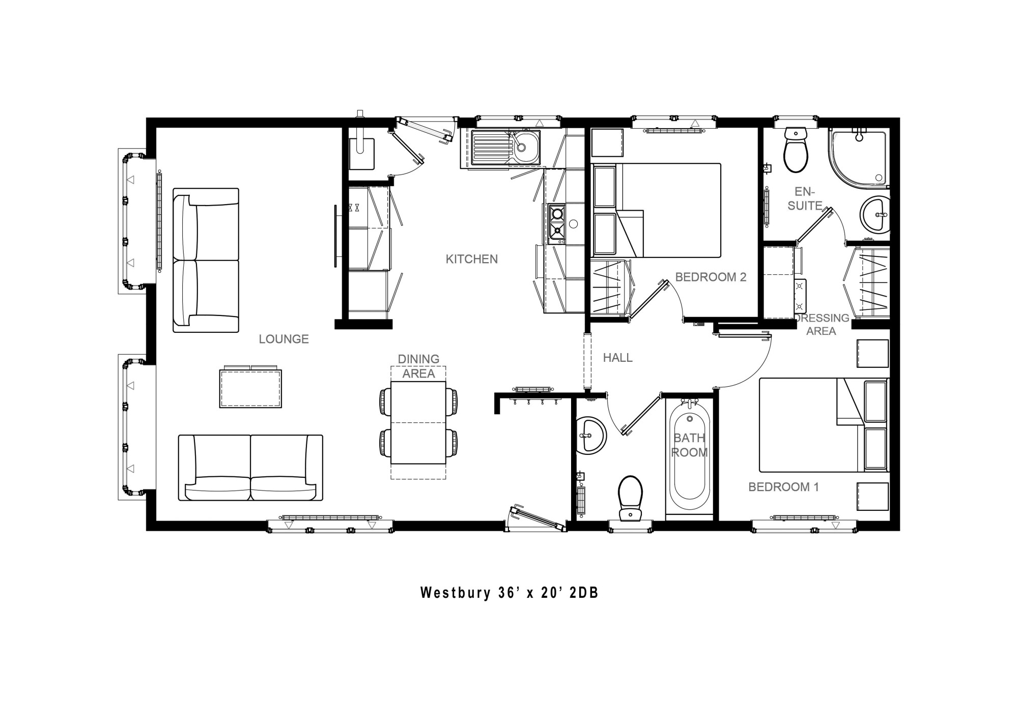
This brand new, fully-furnished luxury Omar Westbury (36'x18') park home is perfect for those looking for a detached, easy to maintain, bungalow-style retirement property. The home features two double bedrooms and two bathrooms. A lounge with a fireplace, tv point and large windows, and a fully fitted kitchen with built-in oven, hob, cooker hood and integrated appliances.

THE PARK 
This small, family run residential development of just 16 homes is exclusive for the over 50s. The park is pet friendly, allowing one pet per home at the park owner's discretion. The park is due to have electric gates fitted to provide extra security for its residents, creating a safe environment to enjoy your retirement. There is access to a conservation area behind the park, where you can find natural ponds, wildlife and walking routes. The homes here use mains utilities and metered billing. 

THE AREA
The park is located in the heart of Warwickshire, in the village of Barlestone. Here you are within walking distance of many village amenities including a co op, pubs, restaurants and takeaways, as well as hair dressers, dentist and post office. The market town of Bosworth is a 5 minute drive away and Fosse Park shopping centre, the largest shopping mall in the East Midlands, is a 10 minute drive away. 

HOUSE TO SELL?
Contact Quickmove for a free, no-obligation Part-Exchange valuation on this home. Enjoy a hassle-free move, with no estate agents’ fees or solicitors to pay. You even get to keep the keys to your existing property for 2 weeks after completion, so you can move out at your leisure.

Please note: manufacturer’s stock show home images have been used and may not be a 100% true representation of the property on-site. Specifications and layouts may differ, and some photos may include optional extras.

Site fees (at time of listing): £196 per month
Please note that the site fee (also known as pitch fee, or ground rent) is subject to change and reviewed annually. Ground rent can only be increased in line with the Consumer Price Index. For more information, please get in touch.

Tenure: Virtual Freehold
Virtual Freehold means that when buying a park home, you purchase the physical property outright and lease the land it sits on in perpetuity, for the entirety of the time the home is sited. These properties are not mortgageable, if you are uncertain or would like further advice, please consult a solicitor.

Council Tax Band: A

NOTE: The information in this property listing is correct to the best of our knowledge. We recommend any potential purchaser is aware of all details including park rules and conditions before sale completion. We also recommend consulting the Mobile Homes Act 2013 for conditions of any future sale of this property.

Park Home Assist Insurance Services (Part Of Assist Insurance Services Ltd) are Authorised and Regulated by the FCA and Financial Conduct Authority and are one of the UK’s leading providers of Park Home Insurance. As one of the leading providers of Park Home Insurance we provide modern up-to-date policies specifically designed for Park Home Owners, yet pride ourselves on our old fashioned and traditional values where customer service and personal service comes first.

Our residential park home policies are new for old as standard, are underwritten by certain underwriters at Lloyd’s of London and back by our multi-award-winning claims and customer service department.

Our policies provide a combination of excellent comprehensive cover with some unique additional benefits, coupled with very competitive premiums and generous discounts. With numerous optional additional covers, every policy can be personalised to each policyholders personal circumstances, and therefore you only need to pay for what you need, ensuring that that the premium you pay reflects the cover you enjoy.

www.parkhomeassist.co.uk

Request More Details or Viewing

    I would like more details

    I would like to view a property

    I have a Property to sell

    I would like a Part Exchange valuation

    Sign up here to receive the latest news, updates and special discounts

    * Mandatory fields

    Similar properties demo

    Contact us today for more information and viewings.