Bordon, Hampshire
Property information
Property Summary
Property Features
- Part Exchange available
- Community living
- Pet friendly
- Residential development
- Two double bedrooms
- Brand new home
- Garden space
- Private
- gated development
- Well maintained home
- Over 45s
Full Details
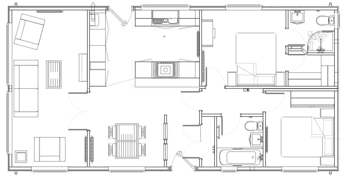
THE HOME
This brand new, modern furnished Sofia (45'x20') park home is perfect for those looking for a detached, easy to maintain, bungalow-style property. The home has a modern kitchen with integrated appliances, and a living and dining room. There master bedroom has a walk in wardrobe and en suite, there is a second double bedroom and a bathroom.
THE PARK
A private gated development of detached luxury bungalow homes for the over 45’s, offering the chance to purchase a luxury but affordable home in a highly sought-after rural location in East Hampshire. Set within beautifully landscaped grounds, every home enjoys a modern design, ample parking, a secluded private garden and a safe, welcoming community of like-minded residents.
THE AREA
The park is surrounded by stunning countryside in a beautiful corner of East Hampshire. While the setting is secluded and peaceful, you’re also close to the hustle and bustle of larger towns such as Camberley, Basingstoke, Guildford and the charming market towns of Alton and Petersfield. The development is also just minutes away by car from Tesco and Lidl, Whitehill Forest shopping centre, the doctor's surgery and a library.
Nearby amenities:
- Doctors Surgery - 1.9 Miles
- Post office - 2 Miles
- Nearest Hospital - 2.2 miles
- Nearest Supermarket - 1.9 Miles
- Nearest Train Station - 5.4 Miles
Site fees: £317.56 per month
Please note that the site fee (also known as 'pitch fee', or 'ground rent') is subject to change and reviewed annually. Ground rent can only be increased in line with the Consumer Price Index. For more information, please get in touch.
Tenure: 'Virtual Freehold'
'Virtual Freehold' means that when buying a park home, you purchase the physical property outright and lease the land it sits on in perpetuity, for the entirety of the time the home is sited. These properties are not mortgageable. Please consult a solicitor for further information.
Council Tax Band A
HOUSE TO SELL?
Contact Quickmove for a free, no-obligation Part-Exchange valuation on this home. Enjoy a hassle-free move, with no estate agents’ fees or solicitors to pay. You even get to keep the keys to your existing property for 2 weeks after completion, so you can move out at your leisure.
NOTE: The information in this property listing is correct to the best of our knowledge. We recommend any potential purchaser is aware of all details including park rules and conditions before sale completion. We also recommend consulting the Mobile Homes Act 2013 for conditions of any future sale of this property.
Park Home Assist Insurance Services (Part Of Assist Insurance Services Ltd) are Authorised and Regulated by the FCA and Financial Conduct Authority and are one of the UK’s leading providers of Park Home Insurance. As one of the leading providers of Park Home Insurance we provide modern up-to-date policies specifically designed for Park Home Owners, yet pride ourselves on our old fashioned and traditional values where customer service and personal service comes first.
Our residential park home policies are new for old as standard, are underwritten by certain underwriters at Lloyd’s of London and back by our multi-award-winning claims and customer service department.
Our policies provide a combination of excellent comprehensive cover with some unique additional benefits, coupled with very competitive premiums and generous discounts. With numerous optional additional covers, every policy can be personalised to each policyholders personal circumstances, and therefore you only need to pay for what you need, ensuring that that the premium you pay reflects the cover you enjoy.
Request More Details or Viewing
Similar properties demo
Contact us today for more information and viewings.

Contact
Tel: 01604 946 733
Working Hours:
Mon-Fri 9am to 5.30pm
Correspondence Address:
Park Home Search
Royal House
Queenswood
Newport Pagnell Road West
Northampton
NN4 7JJ













