Builth Wells, Wales
Property information
Property Summary
Property Features
- Part Exchange available
- Fully furnished
- Two bedrooms
- Over 50s
- Brand new home
- Coming soon
- Modern design
- Rural Location
- Residential park
- Countryside walks
Full Details
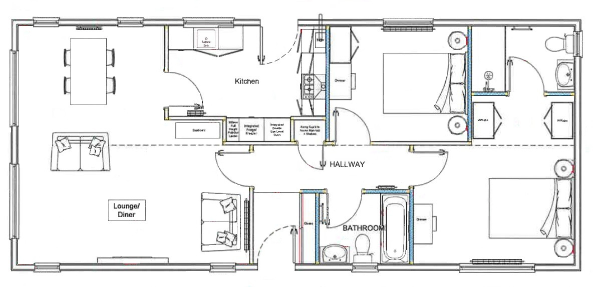
THE HOME
This brand new, fully-furnished Harbur H4 luxury park home (45'x20') is perfect for those looking for a detached, easy to maintain, bungalow-style property. The home features a fitted kitchen with integrated appliances, a dining area and a comfortable living room. There are two double bedrooms, an en suite and a family bathroom.
THE PARK
Set within 24 acres of the finest countryside in Wales, this is a residential park for the over 50s and is located off of the A470, about 3 miles north of the attractive small market town of Builth Wells, home of the Royal Welsh Show. To the south it enjoys panoramic views of the Wye Valley and is bordered to the north by the Cambrian Mountains. Pets are considered (one cat or one dog).
THE AREA
6 miles to the north is the spa town of Llandrindod Wells, with its lake and park. Some 12 miles north east are the Elan Valley reservoirs known as ‘The Welsh Lake District’ with its abundance of mountains, lakes, forests and unspoilt beauty. Within the area are to be found golfing, tennis, pony trekking, boating, fishing, climbing and many other amenities. Nearby is Builth Road Station on the main mid Wales line from Swansea to Shrewsbury. Buses run three times a day from the park to Builth Wells which has good day-to-day shopping facilities as well as doctors, dentist and library, etc. Milk and newspapers are delivered, and a mobile library visits the park.
HOUSE TO SELL?
Contact Quickmove for a free, no-obligation Part-Exchange valuation on this home. Enjoy a hassle-free move, with no estate agents’ fees or solicitors to pay. You even get to keep the keys to your existing property for 2 weeks after completion, so you can move out at your leisure.
Please note: manufacturer’s stock show home images have been used and may not be a 100% true representation of the property on-site. Specifications and layouts may differ, and some photos may include optional extras.
Site fees (at time of listing): £274 per month
Please note that the site fee (also known as pitch fee, or ground rent) is subject to change and reviewed annually. Ground rent can only be increased in line with the Consumer Price Index. For more information, please get in touch.
Tenure: Virtual Freehold
Virtual Freehold means that when buying a park home, you purchase the physical property outright and lease the land it sits on in perpetuity, for the entirety of the time the home is sited. These properties are not mortgageable. Please consult a solicitor for further information.
Council Tax Band: A, B or C (Plot dependant)
NOTE: The information in this property listing is correct to the best of our knowledge. We recommend any potential purchaser is aware of all details including park rules and conditions before sale completion. We also recommend consulting the Mobile Homes Act 2013 for conditions of any future sale of this property.
Park Home Assist Insurance Services (Part Of Assist Insurance Services Ltd) are Authorised and Regulated by the FCA and Financial Conduct Authority and are one of the UK’s leading providers of Park Home Insurance. As one of the leading providers of Park Home Insurance we provide modern up-to-date policies specifically designed for Park Home Owners, yet pride ourselves on our old fashioned and traditional values where customer service and personal service comes first.
Our residential park home policies are new for old as standard, are underwritten by certain underwriters at Lloyd’s of London and back by our multi-award-winning claims and customer service department.
Our policies provide a combination of excellent comprehensive cover with some unique additional benefits, coupled with very competitive premiums and generous discounts. With numerous optional additional covers, every policy can be personalised to each policyholders personal circumstances, and therefore you only need to pay for what you need, ensuring that that the premium you pay reflects the cover you enjoy.
Request More Details or Viewing
Similar properties demo
Contact us today for more information and viewings.

Contact
Tel: 01604 946 733
Working Hours:
Mon-Fri 9am to 5.30pm
Correspondence Address:
Park Home Search
Royal House
Queenswood
Newport Pagnell Road West
Northampton
NN4 7JJ













