Bury St. Edmunds, Suffolk

£139,995
Residential

Property information

Property Summary

BRAND NEW Park Home (40'x20') | Residential Development | Fully furnished | Exclusive for the over 50s | Parking | Two double bedrooms | Fitted kitchen | Modern design | High specification | Gated entrance | Safe and Secure, Community Of Like-Minded People | Part Exchange Available

Property Features

  • Part Exchange available
  • Fully furnished
  • Community living
  • Pet friendly
  • Residential development
  • Over 50s
  • Exceptionally high specification
  • Brand new home

Full Details

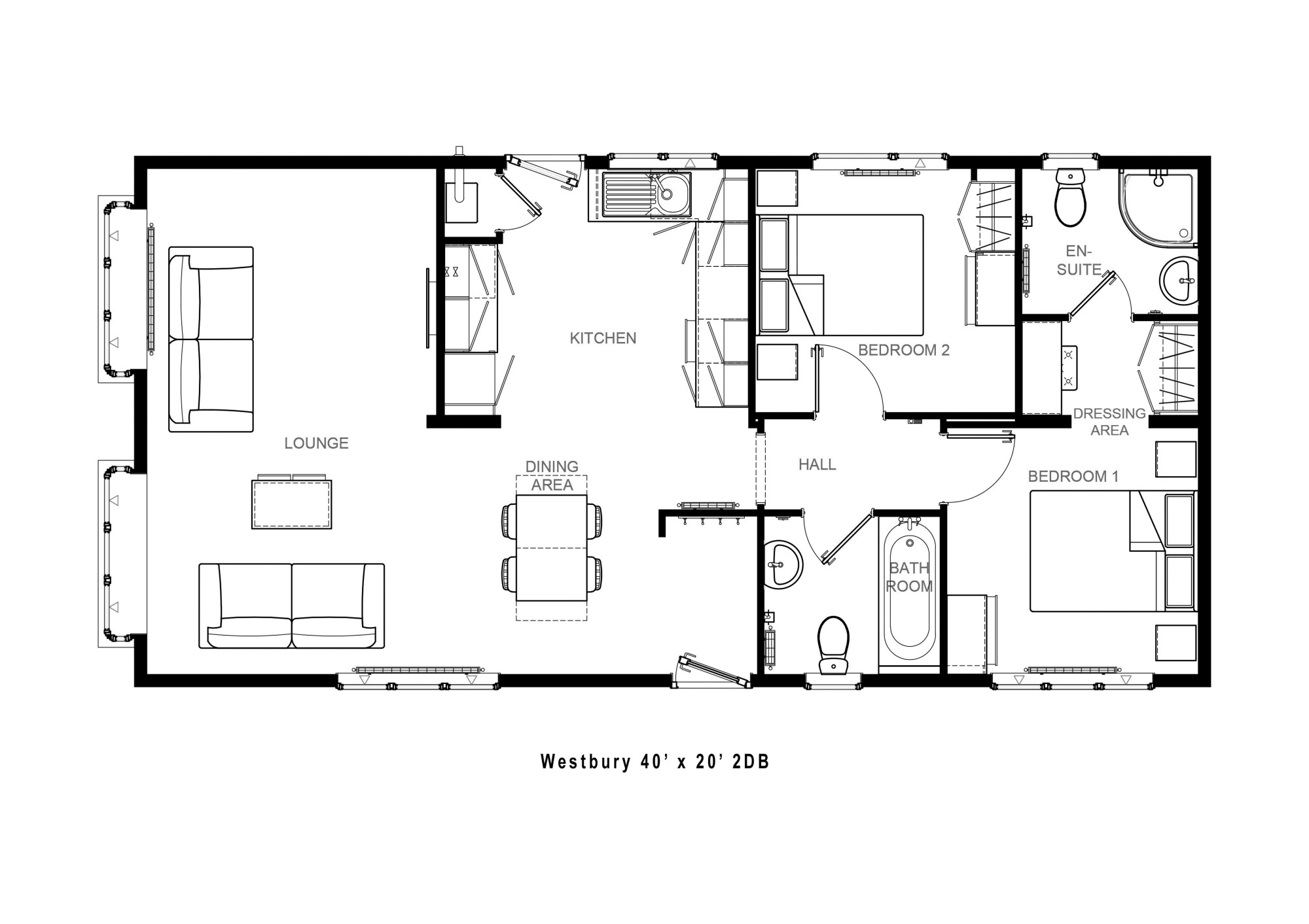
THE HOME
This brand new, fully furnished Omar Westbury (40'x20') luxury park home is perfect for those looking for a detached, easy to maintain, bungalow-style property. The home itself boasts double glazing, gas central heating as well as a modern, fitted kitchen with appliances as well as two spacious bedrooms with an en-suite to the master bedroom. 

THE PARK
This is a residential development for the over 50’s is emerging next to the tranquil village of Beck Row, in Suffolk, where you’ll be able to enjoy a relaxed and peaceful lifestyle. The park is pet friendly and has a bus stop nearby. This park will be perfect for anyone looking to move into a safe and secure community of like-minded individuals. Pets permitted when you buy a new home on this park.

THE AREA 
A bus stop can be found a short walk from the park and nearby amenities including a local shop, Sainsbury's, pub and a doctors are all within a few miles. Only a 30 minute drive away and you’ll find both the market towns of Bury St Edmunds and Thetford. Bury St Edmunds, known as the cultural and retail centre for West Suffolk is also famed for its brewing and malting activities, whilst at Thetford you can explore the quaint town marked by history, with a strong connection to nature. You can enjoy nearby Thetford Forest Park, a working forest and leisure destination with bike trails, wildlife walks and an arboretum.

HOUSE TO SELL?
Hassle-free property Part-Exchange is available from recommended part-exchange specialists Quickmove Properties, with no estate agent fees, no solicitors fees and no market uncertainty.

Note: Please note the images are for illustration purposes and may vary from the actual bungalow on-site. Specifications and layouts may differ, and some photos/virtual tour may include optional extras.

Site fees (at time of listing): £243.46 per month
Please note that the site fee (also known as pitch fee, or ground rent) is subject to change and reviewed annually. Ground rent can only be increased in line with the Consumer Price Index. For more information, please get in touch.

Tenure: Virtual Freehold
Virtual Freehold means that when buying a park home, you purchase the physical property outright and lease the land it sits on in perpetuity, for the entirety of the time the home is sited. These properties are not mortgageable. Please consult a solicitor for further information.

Council Tax Band: A

NOTE: The information in this property listing is correct to the best of our knowledge. We recommend any potential purchaser is aware of all details including park rules and conditions before sale completion. We also recommend consulting the Mobile Homes Act 2013 for conditions of any future sale of this property.

Park Home Assist Insurance Services (Part Of Assist Insurance Services Ltd) are Authorised and Regulated by the FCA and Financial Conduct Authority and are one of the UK’s leading providers of Park Home Insurance. As one of the leading providers of Park Home Insurance we provide modern up-to-date policies specifically designed for Park Home Owners, yet pride ourselves on our old fashioned and traditional values where customer service and personal service comes first.

Our residential park home policies are new for old as standard, are underwritten by certain underwriters at Lloyd’s of London and back by our multi-award-winning claims and customer service department.

Our policies provide a combination of excellent comprehensive cover with some unique additional benefits, coupled with very competitive premiums and generous discounts. With numerous optional additional covers, every policy can be personalised to each policyholders personal circumstances, and therefore you only need to pay for what you need, ensuring that that the premium you pay reflects the cover you enjoy.

www.parkhomeassist.co.uk

Request More Details or Viewing

    I would like more details

    I would like to view a property

    I have a Property to sell

    I would like a Part Exchange valuation

    Sign up here to receive the latest news, updates and special discounts

    * Mandatory fields

    Similar properties demo

    Contact us today for more information and viewings.