Cheltenham, Gloucestershire
Property information
Property Summary
Property Features
- Part Exchange available
- Fully furnished
- Community living
- Pet friendly
- Residential development
- Two double bedrooms
- Brand new home
- Town location
- Integrated appliances
- Over 45s
Full Details
THE HOME
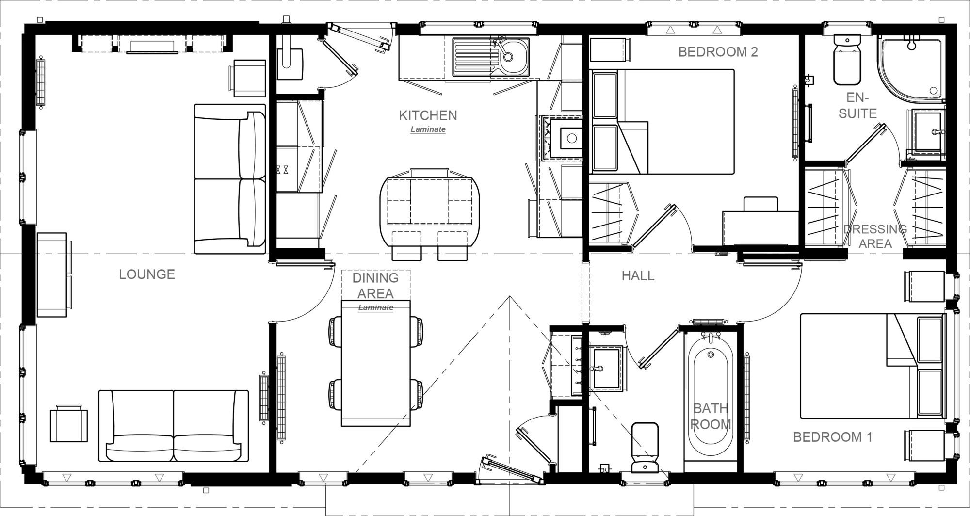
This brand new, modern-furnished Omar Vision (40'x20') luxury park home is perfect for those looking for a detached, easy to maintain, bungalow-style property. The home features a spacious kitchen and dining room with integrated appliances, a comfortable living room, two double bedrooms, an en suite and a bathroom. The home also has parking for 2 cars.
THE PARK
This brand new development consist of 13 homes, with show homes ready to view. The park is exclusive for the over 45s and is pet friendly. Park homes are designed to the highest possible specifications, with premium fixtures and fittings. They are modern, high-quality homes and boast a close-knit community that is so valuable to residential park home living.
THE AREA
Located in the heart of Cheltenham and just under a mile from Cheltenham racecourse, with amenities within walking distance. The nearby town of Gloucester is less than 10 miles away, and Cheltenham sits on the edge of the Cotswolds, an area of natural beauty with plenty of lovely villages and parks to explore.
Local amenities
Bus stop: outside development
Train station: 1.2 miles
Medical centre: 1.4 miles
Tesco superstore: 1.4 miles
HOUSE TO SELL?
Contact Quickmove for a free, no-obligation Part-Exchange valuation on this home. Enjoy a hassle-free move, with no estate agents’ fees or solicitors to pay. You even get to keep the keys to your existing property for 2 weeks after completion, so you can move out at your leisure.
Please note: manufacturer’s stock show home images have been used and may not be a 100% true representation of the property on-site. Specifications and layouts may differ, and some photos may include optional extras.
Site fees (at time of listing): £200 per month
Please note that the site fee (also known as pitch fee, or ground rent) is subject to change and reviewed annually. Ground rent can only be increased in line with the Consumer Price Index. For more information, please get in touch.
Tenure: Virtual Freehold
Virtual Freehold means that when buying a park home, you purchase the physical property outright and lease the land it sits on in perpetuity, for the entirety of the time the home is sited. These properties are not mortgageable. Please consult a solicitor for further information.
Council Tax Band: A
NOTE: The information in this property listing is correct to the best of our knowledge. We recommend any potential purchaser is aware of all details including park rules and conditions before sale completion. We also recommend consulting the Mobile Homes Act 2013 for conditions of any future sale of this property.
Park Home Assist Insurance Services (Part Of Assist Insurance Services Ltd) are Authorised and Regulated by the FCA and Financial Conduct Authority and are one of the UK’s leading providers of Park Home Insurance. As one of the leading providers of Park Home Insurance we provide modern up-to-date policies specifically designed for Park Home Owners, yet pride ourselves on our old fashioned and traditional values where customer service and personal service comes first.
Our residential park home policies are new for old as standard, are underwritten by certain underwriters at Lloyd’s of London and back by our multi-award-winning claims and customer service department.
Our policies provide a combination of excellent comprehensive cover with some unique additional benefits, coupled with very competitive premiums and generous discounts. With numerous optional additional covers, every policy can be personalised to each policyholders personal circumstances, and therefore you only need to pay for what you need, ensuring that that the premium you pay reflects the cover you enjoy.
Request More Details or Viewing
Similar properties demo
Contact us today for more information and viewings.

Contact
Tel: 01604 946 733
Working Hours:
Mon-Fri 9am to 5.30pm
Correspondence Address:
Park Home Search
Royal House
Queenswood
Newport Pagnell Road West
Northampton
NN4 7JJ












