Elton, Cheshire
Property information
Property Summary
Property Features
- Part Exchange available
- Countryside views
- Residential development
- Two double bedrooms
- Over 50s
- Garden space
- Pre-owned park home
- Outstanding location
- Driveway
- Established park
Full Details
THE HOME
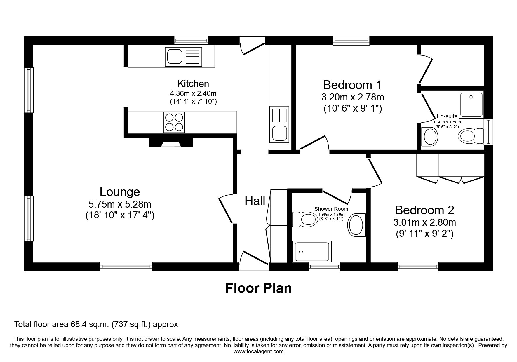
This pre-owned, modern Omar Regency (40'x20') park home is perfect for those looking for a detached, easy to maintain, bungalow-style property. The home has a galley-style kitchen and utility room, dining area and comfortable living room with an electric fireplace. The master bedroom has a walk in wardrobe and an en suite, there is a second double bedroom and a bathroom. The home has an enclosed private garden and a driveway for 1 car and space in front for another 2.
THE PARK
This superb, small, intimate residential park is highly sought after with a great community spirit, with an on-site manager whose office is open daily. The park is exclusive for the over 50s, providing a safe community of like minded people. Residents at the park can get fast broadband and Sky is also available here.
THE AREA
The park perches on the edge of the village of Elton and overlooks open the countryside with delightful views towards the westerly range of the Cheshire Hills that surround Frodsham and Alverney. Idyllically situated within the original fruit orchards of Elton Manor, this park really is the perfect place for rest and relaxation and the perfect retirement. The local shops and medical centre are just a 10-minute stroll away with the main hospital being less than five miles away. Chester, Liverpool and Manchester are also within easy reach.
HOUSE TO SELL?
Contact Quickmove for a free, no-obligation Part-Exchange valuation on this home. Enjoy a hassle-free move, with no estate agents’ fees or solicitors to pay. You even get to keep the keys to your existing property for 2 weeks after completion, so you can move out at your leisure.
Site fees (at time of listing): £240.75 per month
Please note that the site fee (also known as pitch fee, or ground rent) is subject to change and reviewed annually. Ground rent can only be increased in line with the Consumer Price Index. For more information, please get in touch.
Tenure: Virtual Freehold
Virtual Freehold means that when buying a park home, you purchase the physical property outright and lease the land it sits on in perpetuity, for the entirety of the time the home is sited. These properties are not mortgageable. Please consult a solicitor for further information.
Council Tax Band: A
NOTE: The information in this property listing is correct to the best of our knowledge. We recommend any potential purchaser is aware of all details including park rules and conditions before sale completion. We also recommend consulting the Mobile Homes Act 2013 for conditions of any future sale of this property.
Park Home Assist Insurance Services (Part Of Assist Insurance Services Ltd) are Authorised and Regulated by the FCA and Financial Conduct Authority and are one of the UK’s leading providers of Park Home Insurance. As one of the leading providers of Park Home Insurance we provide modern up-to-date policies specifically designed for Park Home Owners, yet pride ourselves on our old fashioned and traditional values where customer service and personal service comes first.
Our residential park home policies are new for old as standard, are underwritten by certain underwriters at Lloyd’s of London and back by our multi-award-winning claims and customer service department.
Our policies provide a combination of excellent comprehensive cover with some unique additional benefits, coupled with very competitive premiums and generous discounts. With numerous optional additional covers, every policy can be personalised to each policyholders personal circumstances, and therefore you only need to pay for what you need, ensuring that that the premium you pay reflects the cover you enjoy.
Request More Details or Viewing
Similar properties demo
Contact us today for more information and viewings.

Contact
Tel: 01604 946 733
Working Hours:
Mon-Fri 9am to 5.30pm
Correspondence Address:
Park Home Search
Royal House
Queenswood
Newport Pagnell Road West
Northampton
NN4 7JJ















