Forres, Scotland
Property information
Property Summary
Property Features
- Part Exchange available
- Fully furnished
- Pet friendly
- FREE site fees for 1 year
- Brand new home
- Countryside location
- Short drive to the coast
- Forest and river walks
- Historic location
- No age restriction
Full Details
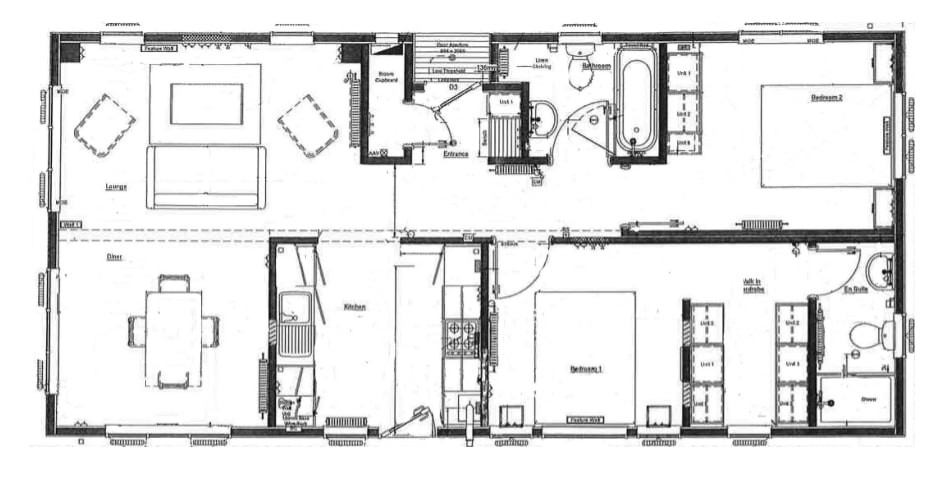
THE HOME
This brand new, modern-furnished Tingdene Harrington (40'x20') luxury park home is perfect for those looking for a detached, easy to maintain, bungalow style residential property. The home features an open plan kitchen, dining and living space, two bedrooms and two bathrooms. This home is on a premium plot offering uninterrupted views of the Moray countryside.
THE PARK
This countryside development is a welcoming and peaceful environment that offers residential and holiday homes. The park has a reception and full time manager on site parking and wifi. There is also on site parking, a coffee lounge and forest and river walks.
THE AREA
Situated on the Moray coast, Forres, is one of Scotland’s oldest towns having won several Britain in Bloom and Scotland in Bloom competitions for its beautiful floral displays. In the town you will find your everyday requirements; post office, health centres, vets, leisure centre, chemists, and food superstores. Other local towns include Nairn, also known Brighton of the North, and Elgin, a thriving shopping town with many well-known high street shops. Forres has extremely good transport links with a regular rail service to Aberdeen and Inverness and daily bus services that pass through the town. Only 25 minutes drive away on the A96 is Inverness Airport which has regular flights to all over the UK and Europe.
HOUSE TO SELL?
Contact Quickmove for a free, no-obligation Part-Exchange valuation on this home. Enjoy a hassle-free move, with no estate agents’ fees or solicitors to pay. You even get to keep the keys to your existing property for 2 weeks after completion, so you can move out at your leisure.
Site fees (at time of listing): From £3,152 per year - price will vary depending on position and home
Please note that the site fee (also known as pitch fee, or ground rent) is subject to change and reviewed annually. Ground rent can only be increased in line with the Consumer Price Index. For more information, please get in touch.
Tenure: Virtual Freehold
Virtual Freehold means that when buying a park home, you purchase the physical property outright and lease the land it sits on in perpetuity, for the entirety of the time the home is sited. These properties are not mortgageable. Please consult a solicitor for further information.
NOTE: The information in this property listing is correct to the best of our knowledge. We recommend any potential purchaser is aware of all details including park rules and conditions before sale completion. We also recommend consulting the Mobile Homes Act 2013 for conditions of any future sale of this property.
Park Home Assist Insurance Services (Part Of Assist Insurance Services Ltd) are Authorised and Regulated by the FCA and Financial Conduct Authority and are one of the UK’s leading providers of Park Home Insurance. As one of the leading providers of Park Home Insurance we provide modern up-to-date policies specifically designed for Park Home Owners, yet pride ourselves on our old fashioned and traditional values where customer service and personal service comes first.
Our residential park home policies are new for old as standard, are underwritten by certain underwriters at Lloyd’s of London and back by our multi-award-winning claims and customer service department.
Our policies provide a combination of excellent comprehensive cover with some unique additional benefits, coupled with very competitive premiums and generous discounts. With numerous optional additional covers, every policy can be personalised to each policyholders personal circumstances, and therefore you only need to pay for what you need, ensuring that that the premium you pay reflects the cover you enjoy.
Request More Details or Viewing
Similar properties demo
Contact us today for more information and viewings.

Contact
Tel: 01604 946 733
Working Hours:
Mon-Fri 9am to 5.30pm
Correspondence Address:
Park Home Search
Royal House
Queenswood
Newport Pagnell Road West
Northampton
NN4 7JJ












