Godalming, Surrey
Property information
Property Summary
Property Features
- Pet friendly
- Over 50s
- Exceptionally high specification
- Brand new home
- Residential development
- Modern design
- Two bedrooms
- Community living
- Part Exchange available
- Decking
Full Details
THE HOME
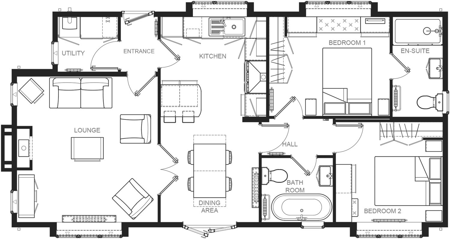
This brand-new, modern-furnished Omar Elveden Cottage (42'x20') luxury park home is perfect for those looking for a detached, easy-to-maintain, bungalow-style property. The home features a modern and spacious kitchen with integrated appliances, and dining area, the living room features large windows and electric fireplace. There are two double bedrooms, and en suite and a bathroom. The home has a decked veranda, landscaped garden and parking space.
THE PARK
This new residential development is exclusive for those over 50 and offers a safe environment with a like minded community. Located in the beautiful village of Thursley, the park is surrounded by some of Surrey’s most stunning countryside. Each home is built to a high standard, with landscaped gardens and parking, the homes are also pet friendly.
THE AREA
The park backs onto the Thursley Common National Park Reserve and has great transport links. The National Trust's Winkworth Aboretum is also nearby, a scenic preserved woodland. Godalming is a market town just 5 miles from the park. The larger town of Guildford is 10 miles away where you can find high street shops and entertainment venues.
Local amenities:
-Nearest doctors in Witley – 3.5 miles
-Golf course: 3.7 miles
-Milford Train station - 4.1 miles
-Nearest shop – Waitrose Godalming – 5 miles
HOUSE TO SELL?
Contact Quickmove for a free, no-obligation Part-Exchange valuation on this home. Enjoy a hassle-free move, with no estate agents’ fees or solicitors to pay. You even get to keep the keys to your existing property for 2 weeks after completion, so you can move out at your leisure.
Site fees (at time of listing): £298.63 per month
Please note that the site fee (also known as pitch fee, or ground rent) is subject to change and reviewed annually. Ground rent can only be increased in line with the Consumer Price Index. For more information, please get in touch.
Tenure: Virtual Freehold
Virtual Freehold means that when buying a park home, you purchase the physical property outright and lease the land it sits on in perpetuity, for the entirety of the time the home is sited. These properties are not mortgageable, if you are uncertain or would like further advice, please consult a solicitor.
Council Tax Band: A
NOTE: The information in this property listing is correct to the best of our knowledge. We recommend any potential purchaser is aware of all details including park rules and conditions before sale completion. We also recommend consulting the Mobile Homes Act 2013 for conditions of any future sale of this property.
Park Home Assist Insurance Services (Part Of Assist Insurance Services Ltd) are Authorised and Regulated by the FCA and Financial Conduct Authority and are one of the UK’s leading providers of Park Home Insurance. As one of the leading providers of Park Home Insurance we provide modern up-to-date policies specifically designed for Park Home Owners, yet pride ourselves on our old fashioned and traditional values where customer service and personal service comes first.
Our residential park home policies are new for old as standard, are underwritten by certain underwriters at Lloyd’s of London and back by our multi-award-winning claims and customer service department.
Our policies provide a combination of excellent comprehensive cover with some unique additional benefits, coupled with very competitive premiums and generous discounts. With numerous optional additional covers, every policy can be personalised to each policyholders personal circumstances, and therefore you only need to pay for what you need, ensuring that that the premium you pay reflects the cover you enjoy.
Request More Details or Viewing
Similar properties demo
Contact us today for more information and viewings.

Contact
Tel: 01604 946 733
Working Hours:
Mon-Fri 9am to 5.30pm
Correspondence Address:
Park Home Search
Royal House
Queenswood
Newport Pagnell Road West
Northampton
NN4 7JJ











