Hailsham, East Sussex
Property information
Property Summary
Property Features
- Fully furnished
- Pet friendly
- Residential development
- Over 50s
- Brand new home
- Pub on site
- Communal area
- Private parking
- Shop on park
- Established park
Full Details
THE HOME
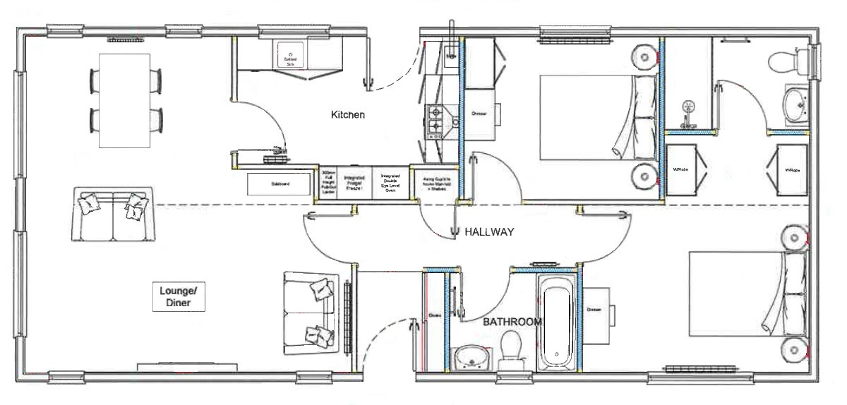
This brand new, modern-furnished luxury Harbur H4 (48'x20') park home is perfect for those looking for a detached, easy to maintain, bungalow-style property. The home has a fully integrated kitchen, dining area, separate living room with comfortable furniture. The master bedroom has an en suite and a dressing area, there is a second double bedroom and bathroom. The home has a lawned garden and its own driveway.
This particular park home model is known for it’s wider doorways and is spacious which could suit those with mobility issues
THE PARK
This established residential development located near Ashdown Forest is a picturesque and welcoming community. Exclusive for the over 50s, this park has all of the essential amenities, including a bus stop, shop and a recently refurbished pub. The park also has many communal areas with benches, a full size bowling green and a French boules area.
The park home lifestyle provides community living for like-minded people. The park is landscaped and private, to offer safe and secure living. Built in a countryside location, the park offers their residents the opportunity for an active lifestyle
THE AREA
The development is down the road for Golden Cross village where you can find local village amenities. The larger town of Hailsham is 5 miles away, the town is steeped in history and has many high street shops and restaurants. If you enjoy being near the coast, the popular Eastbourne beach is just 13 miles away, and the smaller, more secluded Pevensey Bay beach is 14 miles away.
Local amenities:
Morrison's: 3.8 miles
Eastbourne General Hospital: 3.6 miles
Doctors surgery: 5 miles
Drusilla's Zoo: 7 miles
Uckfield town and train station: 8 miles
Bexhill On Sea: 18 miles
Royale Tunbrudge Wells: 23 miles
HOUSE TO SELL?
Contact Quickmove for a free, no-obligation Part-Exchange valuation on this home. Enjoy a hassle-free move, with no estate agents’ fees or solicitors to pay. You even get to keep the keys to your existing property for 2 weeks after completion, so you can move out at your leisure.
Please note: manufacturer’s stock show home images have been used and may not be a 100% true representation of the property on-site. Specifications and layouts may differ, and some photos may include optional extras.
Site fees (at time of listing): £347.70 per month
Please note that the site fee (also known as pitch fee, or ground rent) is subject to change and reviewed annually. Ground rent can only be increased in line with the Consumer Price Index. For more information, please get in touch.
Tenure: Virtual Freehold
Virtual Freehold means that when buying a park home, you purchase the physical property outright and lease the land it sits on in perpetuity, for the entirety of the time the home is sited. These properties are not mortgageable. Please consult a solicitor for further information.
Council Tax Band: A
NOTE: The information in this property listing is correct to the best of our knowledge. We recommend any potential purchaser is aware of all details including park rules and conditions before sale completion. We also recommend consulting the Mobile Homes Act 2013 for conditions of any future sale of this property.
Park Home Assist Insurance Services (Part Of Assist Insurance Services Ltd) are Authorised and Regulated by the FCA and Financial Conduct Authority and are one of the UK’s leading providers of Park Home Insurance. As one of the leading providers of Park Home Insurance we provide modern up-to-date policies specifically designed for Park Home Owners, yet pride ourselves on our old fashioned and traditional values where customer service and personal service comes first.
Our residential park home policies are new for old as standard, are underwritten by certain underwriters at Lloyd’s of London and back by our multi-award-winning claims and customer service department.
Our policies provide a combination of excellent comprehensive cover with some unique additional benefits, coupled with very competitive premiums and generous discounts. With numerous optional additional covers, every policy can be personalised to each policyholders personal circumstances, and therefore you only need to pay for what you need, ensuring that that the premium you pay reflects the cover you enjoy.
Request More Details or Viewing
Similar properties demo
Contact us today for more information and viewings.

Contact
Tel: 01604 946 733
Working Hours:
Mon-Fri 9am to 5.30pm
Correspondence Address:
Park Home Search
Royal House
Queenswood
Newport Pagnell Road West
Northampton
NN4 7JJ
















