Llantwit Major, South Glamorgan
Property information
Property Summary
Property Features
- Part Exchange available
- Fully furnished
- Residential development
- Over 50s
- Brand new home
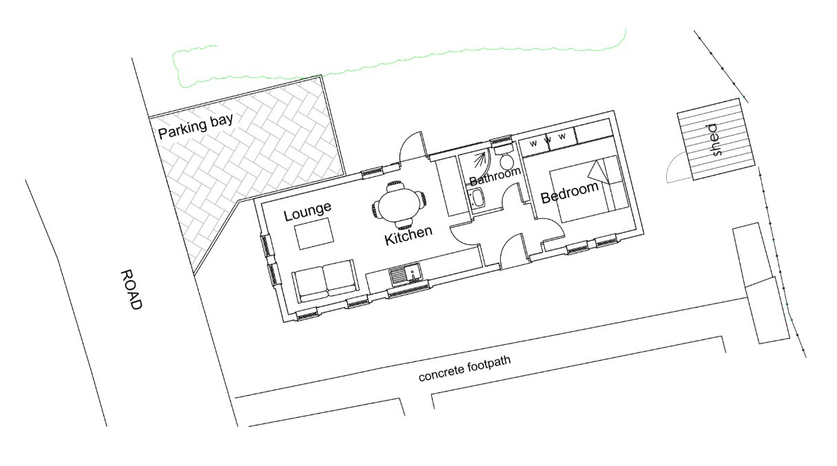
- Car bay and garden shed
- Outstanding location
- Established park
Full Details
THE HOME
This brand new, modern-furnished Omar Newmarket (35'x12') luxury park home is perfect for those looking for a detached, easy to maintain, bungalow-style property. The home has a open-plan lounge, dining area and kitchen, one large double bedroom with built-in storage, and a luxurious shower room. The home also has a car bay and garden shed.
THE PARK
This wonderful residential park is situated in the historic town of Llantwit Major in the picturesque grounds of a former Manor House. Many of the original trees remain and there is a beautiful ornamental pond complete with fountain and a variety of fish. The park is exclusive for the over 50 and pets are considered at the park (one dog or one cat).
THE AREA
This development is ideally placed for access to the M4 with main line rail links at Cardiff and Rhoose International Airport is less than 30 minutes by car. You can now take advantage of the new Vale of Glamorgan train line running from Bridgend to Cardiff via Llantwit Major, Rhoose Cardiff International Airport and Barry. Cardiff, the capital city of Wales with its superb shopping facilities is easily reached. Llantwit Major is an interesting town to explore and also has good shopping facilities as well as Doctors, Dentist and a Library. Milk and newspapers are delivered to the Park daily, with weekly calls by a local fishmonger.
HOUSE TO SELL?
Contact Quickmove for a free, no-obligation Part-Exchange valuation on this home. Enjoy a hassle-free move, with no estate agents’ fees or solicitors to pay. You even get to keep the keys to your existing property for 2 weeks after completion, so you can move out at your leisure.
Site fees (at time of listing): £235 per month
Please note that the site fee (also known as pitch fee, or ground rent) is subject to change and reviewed annually. Ground rent can only be increased in line with the Consumer Price Index. For more information, please get in touch.
Tenure: Virtual Freehold
Virtual Freehold means that when buying a park home, you purchase the physical property outright and lease the land it sits on in perpetuity, for the entirety of the time the home is sited. These properties are not mortgageable, if you are uncertain or would like further advice, please consult a solicitor.
Council Tax Band: A - D
NOTE: The information in this property listing is correct to the best of our knowledge. We recommend any potential purchaser is aware of all details including park rules and conditions before sale completion. We also recommend consulting the Mobile Homes Act 2013 for conditions of any future sale of this property.
Park Home Assist Insurance Services (Part Of Assist Insurance Services Ltd) are Authorised and Regulated by the FCA and Financial Conduct Authority and are one of the UK’s leading providers of Park Home Insurance. As one of the leading providers of Park Home Insurance we provide modern up-to-date policies specifically designed for Park Home Owners, yet pride ourselves on our old fashioned and traditional values where customer service and personal service comes first.
Our residential park home policies are new for old as standard, are underwritten by certain underwriters at Lloyd’s of London and back by our multi-award-winning claims and customer service department.
Our policies provide a combination of excellent comprehensive cover with some unique additional benefits, coupled with very competitive premiums and generous discounts. With numerous optional additional covers, every policy can be personalised to each policyholders personal circumstances, and therefore you only need to pay for what you need, ensuring that that the premium you pay reflects the cover you enjoy.
Request More Details or Viewing
Contact us today for more information and viewings.

Contact
Tel: 01604 946 733
Working Hours:
Mon-Fri 9am to 5.30pm
Correspondence Address:
Park Home Search
Royal House
Queenswood
Newport Pagnell Road West
Northampton
NN4 7JJ











