New Milton, Hampshire

£259,995
Residential

Property information

Property Summary

BRAND NEW Park Home (40'x20') | Fully-furnished | Residential park exclusive for the over 55s | Community living | Rural location with countryside walks | Set on the edge of The New Forest | Shops and facilities nearby | Pet friendly | Part exchange available | Modern home | High spec

Property Features

  • Part Exchange available
  • Pet friendly
  • Brand new home
  • Over 55's
  • Retirement property
  • Garden space
  • Rural Location
  • Shops and amenities nearby
  • Residential park
  • Countryside walks

Full Details

MASSIVE SALE! WAS £274,950 NOW £259,995

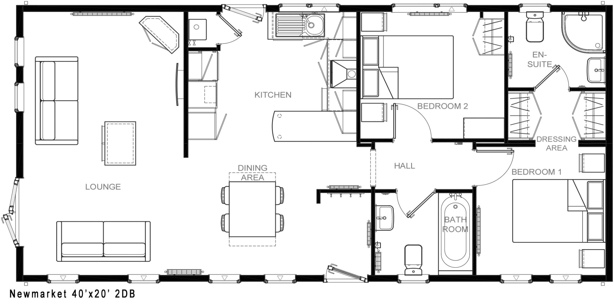
THE HOME
This brand new, modern-furnished Omar Newmarket (40'x20') luxury park home is perfect for those looking for a detached, easy to maintain, bungalow-style retirement property. The home features a fully fitted kitchen, a comfortable lounge and dining area, two double bedrooms, an en suite and a family bathroom.

THE PARK
This established residential park is exclusive for the over 55s and is located right on the edge of the New Forest. Each luxury, fully furnished homes comes with its own individual garden. The park is pet friendly and settled in a rural area with country walks that start right on the park. The homes are well located, with a doctors surgery 1.5 miles away and local shops a 20 minute walk away.  The park had great access to public transport with a bus that comes to the park 3 times a day during the week, local taxis, and a train station that can take you to London Waterloo and Weymouth in Dorset. 

THE AREA
The park is nestled on the edge of The New Forest National Park, and offers the ideal location for rural tranquillity and adventure. Nearby New Milton is the result of the coming together of three villages, and it offers every facility you could need, including banks, a post office, a supermarket, a medical centre and a library. Furthermore, if it’s rest, relaxation and recreation you’re looking for, then the New Forest is on your doorstep and offers an unrivalled choice of leisure activities – as well as spectacular scenery.

HOUSE TO SELL?
Contact Quickmove for a free, no-obligation Part-Exchange valuation on this home.  Enjoy a hassle-free move, with no estate agents’ fees or solicitors to pay. You even get to keep the keys to your existing property for 2 weeks after completion, so you can move out at your leisure.

Please note: manufacturer’s ‘stock’ show home image has been used and may not be a 100% true representation of the property on-site. Specifications and layouts may differ and some photos may include optional extras.

Site fees (at time of listing): From £250 per month
Please note that the site fee (also known as pitch fee, or ground rent) is subject to change and reviewed annually. Ground rent can only be increased in line with the Retail Price Index. For more information, please get in touch.

Tenure: Virtual Freehold
Virtual Freehold means that when buying a park home, you purchase the physical property outright and lease the land it sits on in perpetuity, for the entirety of the time the home is sited. These properties are not mortgageable. Please consult a solicitor for further information.

Council Tax Band: A

NOTE: The information in this property listing is correct to the best of our knowledge. We recommend any potential purchaser is aware of all details including park rules and conditions before sale completion. We also recommend consulting the Mobile Homes Act 2013 for conditions of any future sale of this property.

Park Home Assist Insurance Services (Part Of Assist Insurance Services Ltd) are Authorised and Regulated by the FCA and Financial Conduct Authority and are one of the UK’s leading providers of Park Home Insurance. As one of the leading providers of Park Home Insurance we provide modern up-to-date policies specifically designed for Park Home Owners, yet pride ourselves on our old fashioned and traditional values where customer service and personal service comes first.

Our residential park home policies are new for old as standard, are underwritten by certain underwriters at Lloyd’s of London and back by our multi-award-winning claims and customer service department.

Our policies provide a combination of excellent comprehensive cover with some unique additional benefits, coupled with very competitive premiums and generous discounts. With numerous optional additional covers, every policy can be personalised to each policyholders personal circumstances, and therefore you only need to pay for what you need, ensuring that that the premium you pay reflects the cover you enjoy.

www.parkhomeassist.co.uk

Request More Details or Viewing

    I would like more details

    I would like to view a property

    I have a Property to sell

    I would like a Part Exchange valuation

    Sign up here to receive the latest news, updates and special discounts

    * Mandatory fields

    Similar properties demo

    Contact us today for more information and viewings.