Preston, Lancashire

£159,995
Residential

Property information

Property Summary

BRAND NEW Park Home (40'x18') | Residential development | Exclusive for over 50s | Fully furnished | Quite and secure surroundings | Modern design | Integrated appliances | Community living | Excellent shopping and amenities nearby | Pet friendly | Part exchange available

Property Features

  • Fully furnished
  • Community living
  • Pet friendly
  • Residential development
  • Two bedrooms
  • Over 50s
  • Exceptionally high specification
  • Brand new home
  • Modern design
  • Part exchange for a quick sale

Full Details

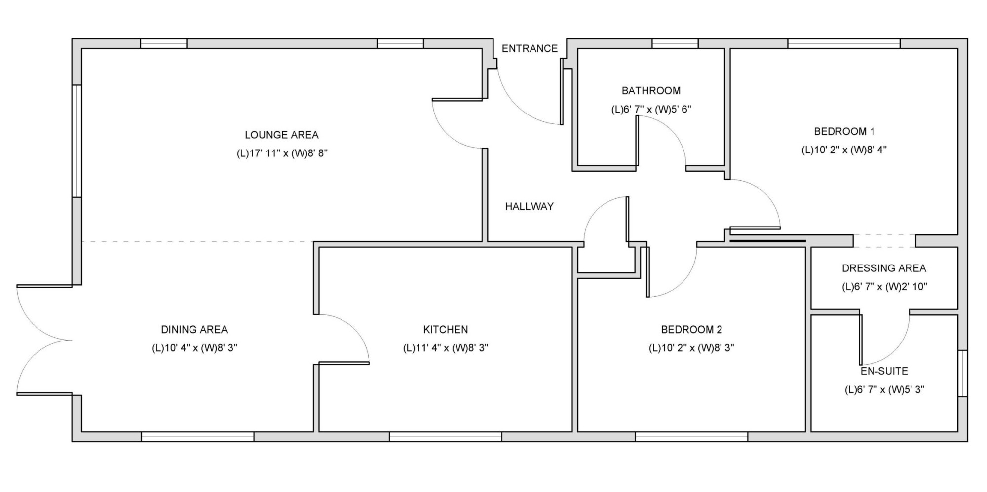
THE HOME
This brand new, modern-furnished luxury Omar Regency park home (40'x18') is perfect for those looking for a detached, easy to maintain, bungalow style property. The home has a modern kitchen with integrated appliance, dining area and comfortable living room. There are two double bedrooms, and en suite and a bathroom. 

THE PARK
This wonderful residential park is situated in the residential suburb of Penwortham, approximately 2.5 miles south of Preston City Centre which offers excellent shopping and general amenities. Despite being close to the busy centre of Preston, the park itself is both quiet and secluded, situated in a unique sheltered location and boasts of an attractive and scenic view.

The park provides an environment where you can relax in quiet and secure surroundings yet benefit from living in a vibrant community. The park is exclusive for the over 50s and is pet friendly.

THE AREA
Local bus services and shopping amenities are available within a short walking distance and access to the motorway network (M6, M61 and M65) is obtained approximately 4.5 miles away to the southeast. The park has been developed around a green open space. The main road is quite close, providing easy access to Preston, Leyland, and all motorway connections. There is also a regular bus service in operation to the heart of Preston.

The seaside towns of Blackpool and Southport can easily be reached by car or public transport and the Lake District is less than an hour away.

Site fees: £200.32 per month
Please note that the site fee (also known as 'pitch fee', or 'ground rent') is subject to change and reviewed annually. Ground rent can only be increased in line with the Consumer Price Index. For more information, please get in touch.

HOUSE TO SELL?
Contact Quickmove for a free, no-obligation Part-Exchange valuation on this home. Enjoy a hassle-free move, with no estate agents’ fees or solicitors to pay. You even get to keep the keys to your existing property for 2 weeks after completion, so you can move out at your leisure.

Tenure: Virtual Freehold
Virtual Freehold means that when buying a park home, you purchase the physical property outright and lease the land it sits on in perpetuity, for the entirety of the time the home is sited. These properties are not mortgageable, if you are uncertain or would like further advice, please consult a solicitor.

Council Tax Band: A

NOTE: The information in this property listing is correct to the best of our knowledge. We recommend any potential purchaser is aware of all details including park rules and conditions before sale completion. We also recommend consulting the Mobile Homes Act 2013 for conditions of any future sale of this property.

Park Home Assist Insurance Services (Part Of Assist Insurance Services Ltd) are Authorised and Regulated by the FCA and Financial Conduct Authority and are one of the UK’s leading providers of Park Home Insurance. As one of the leading providers of Park Home Insurance we provide modern up-to-date policies specifically designed for Park Home Owners, yet pride ourselves on our old fashioned and traditional values where customer service and personal service comes first.

Our residential park home policies are new for old as standard, are underwritten by certain underwriters at Lloyd’s of London and back by our multi-award-winning claims and customer service department.

Our policies provide a combination of excellent comprehensive cover with some unique additional benefits, coupled with very competitive premiums and generous discounts. With numerous optional additional covers, every policy can be personalised to each policyholders personal circumstances, and therefore you only need to pay for what you need, ensuring that that the premium you pay reflects the cover you enjoy.

www.parkhomeassist.co.uk

Request More Details or Viewing

    I would like more details

    I would like to view a property

    I have a Property to sell

    I would like a Part Exchange valuation

    Sign up here to receive the latest news, updates and special discounts

    * Mandatory fields

    Similar properties demo

    Contact us today for more information and viewings.