Ringwood, Hampshire
Property information
Property Summary
Property Features
- Fully furnished
- Community living
- Pet friendly
- Two bedrooms
- Over 50s
- Brand new home
- Garden space
- Shops and amenities nearby
- Residential park
- Established park
Full Details
MASSIVE SALE! WAS £264,950 NOW £249,995
THE HOME
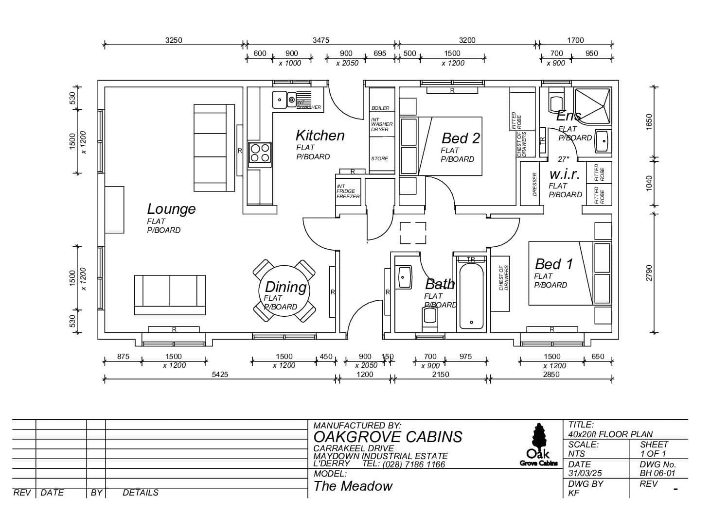
This brand new, modern-furnished Oakgrove Meadow (40'x20') park home is perfect for those looking for a detached, easy to maintain, bungalow-style retirement property. The homes features a modern kitchen, lounge and dining area, two double bedrooms, an en suite and a bathroom.
THE PARK
This established residential development is exclusively for the over 50s. The quiet and peaceful park set in ancient woodlands and open heath is pet-friendly and a short walk from local amenities. A short walk from the park is Avon Heath Country Park and Hurn Forest. The park has easy access to public transport, with a bus stop nearby, local taxis and airports in Southampton and Bournemouth.
THE AREA
The park is located between the market towns of Ringwood and Ferndown, with the seaside town of Poole just 12 miles away. Ringwood has plenty of historic character with quaint and modern shops, restaurants, pubs and cafes and Ferndown features all of the required amenities as well as an award winning golf course.
Local Attractions
- Leisure Centre - Ferndown
- Avon Heath Country Park
- Seaside towns of Poole and Bournemouth
Amenities
- Doctors’ Surgeries: 2–4 miles
- Local Shops: 1 mile
- Supermarket: 2 miles
- Hospitals: Bournemouth and Southampton
HOUSE TO SELL?
Contact Quickmove for a free, no-obligation Part-Exchange valuation on this home. Enjoy a hassle-free move, with no estate agents’ fees or solicitors to pay. You even get to keep the keys to your existing property for 2 weeks after completion, so you can move out at your leisure.
Site fees (at time of listing): £250 per month
Please note that the site fee (also known as pitch fee, or ground rent) is subject to change and reviewed annually. Ground rent can only be increased in line with the Retail Price Index. For more information, please get in touch.
Tenure: Virtual Freehold
Virtual Freehold means that when buying a park home, you purchase the physical property outright and lease the land it sits on in perpetuity, for the entirety of the time the home is sited. These properties are not mortgageable. Please consult a solicitor for further information.
Council Tax Band: A
NOTE: The information in this property listing is correct to the best of our knowledge. We recommend any potential purchaser is aware of all details including park rules and conditions before sale completion. We also recommend consulting the Mobile Homes Act 2013 for conditions of any future sale of this property.
Park Home Assist Insurance Services (Part Of Assist Insurance Services Ltd) are Authorised and Regulated by the FCA and Financial Conduct Authority and are one of the UK’s leading providers of Park Home Insurance. As one of the leading providers of Park Home Insurance we provide modern up-to-date policies specifically designed for Park Home Owners, yet pride ourselves on our old fashioned and traditional values where customer service and personal service comes first.
Our residential park home policies are new for old as standard, are underwritten by certain underwriters at Lloyd’s of London and back by our multi-award-winning claims and customer service department.
Our policies provide a combination of excellent comprehensive cover with some unique additional benefits, coupled with very competitive premiums and generous discounts. With numerous optional additional covers, every policy can be personalised to each policyholders personal circumstances, and therefore you only need to pay for what you need, ensuring that that the premium you pay reflects the cover you enjoy.
Request More Details or Viewing
Similar properties demo
Contact us today for more information and viewings.

Contact
Tel: 01604 946 733
Working Hours:
Mon-Fri 9am to 5.30pm
Correspondence Address:
Park Home Search
Royal House
Queenswood
Newport Pagnell Road West
Northampton
NN4 7JJ
















