St Ives, Cornwall
Property information
Property Summary
Property Features
- Fully furnished
- Pet friendly
- Brand new home
- Small exclusive development
- 100% part exchange
- Gated and secure community
- Coastal Location
- Family owned park
- Bus stop nearby
- Residential park
Full Details
THE HOME
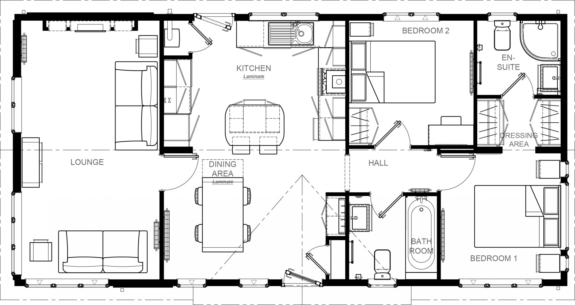
This brand new, modern-furnished Omar Alderney (45'x20') luxury park home is perfect for those looking for a detached, easy to maintain, bungalow-style property. The home features and open plan living space with a spacious kitchen with integrated appliances, an island and a dining area. The living area features an electric fireplace and large windows and French doors leading to the patio. The master bedroom has an en suite and and there is a second double bedroom and a bathroom.
THE PARK
This brand new gated development will consist of 9 high specification park homes. Just a 15 minute walk to Porthminster beach and St Ives Harbour, this development offers stunning views and overlooks Rosewall Hill, an Area of Outstanding Natural Beauty. The park is exclusive for those over 45 and is pet friendly.
THE AREA
This park is ideally located to make the most of the beautiful Cornish coast and countryside. With a bus stop outside the park, residents can explore the local area with ease. St Ives Harbour is a 15 minute walk, with plenty of local shops and amenities in the same area. St Ives train station is in the town and offers easy connections to the rest of the country. The park is also located a short walk from Porthminster Beach and Porthmeor Beach. Penzanse is a 20 minute drive to the south and Lands End is only 36 minutes drive away.
Local amenities
Bus Stop – 130 yards
Defibrillator – Entrance to Park
Shops – 0.6 miles
Doctors – 0.9 miles
Pharmacy – 0.9 miles
Dental Practice – 1.1 miles
Café – 1.1 miles
Pubs & Bars – 1.1 miles
Restaurants – 1.1 miles
Bank – 1.1 miles
Post Office - 1.1 miles
Harbour - 1.2 miles
Porthminster Beach – 1.2 miles
Train Station – 1.3 miles
St Michaels Hospital, Hayle (A&E) – 5.4 miles
100% PART EXCHANGE EXAMPLE:
Value of your existing home*......................£300,000
Price of new park home..............................£225,000
Cash for you to enjoy....................................£75,000
Amount you pay - Zero. No estate agent fees. No solicitor's fees. No stamp duty.
* Market value of your home is likely selling price based on independent estate agents’ appraisals and part exchange assessment, subject to survey.
Site fees (at time of listing): £195 per month
Please note that the site fee (also known as pitch fee, or ground rent) is subject to change and reviewed annually. Ground rent can only be increased in line with the Consumer Price Index. For more information, please get in touch.
Please note: manufacturer’s stock show home images have been used and may not be a 100% true representation of the property on-site. Specifications and layouts may differ, and some photos may include optional extras.
Tenure: Virtual Freehold
Virtual Freehold means that when buying a park home, you purchase the physical property outright and lease the land it sits on in perpetuity, for the entirety of the time the home is sited. These properties are not mortgageable. Please consult a solicitor for further information.
Council Tax Band: A
NOTE: The information in this property listing is correct to the best of our knowledge. We recommend any potential purchaser is aware of all details including park rules and conditions before sale completion. We also recommend consulting the Mobile Homes Act 2013 for conditions of any future sale of this property.
Park Home Assist Insurance Services (Part Of Assist Insurance Services Ltd) are Authorised and Regulated by the FCA and Financial Conduct Authority and are one of the UK’s leading providers of Park Home Insurance. As one of the leading providers of Park Home Insurance we provide modern up-to-date policies specifically designed for Park Home Owners, yet pride ourselves on our old fashioned and traditional values where customer service and personal service comes first.
Our residential park home policies are new for old as standard, are underwritten by certain underwriters at Lloyd’s of London and back by our multi-award-winning claims and customer service department.
Our policies provide a combination of excellent comprehensive cover with some unique additional benefits, coupled with very competitive premiums and generous discounts. With numerous optional additional covers, every policy can be personalised to each policyholders personal circumstances, and therefore you only need to pay for what you need, ensuring that that the premium you pay reflects the cover you enjoy.
Request More Details or Viewing
Similar properties demo
Contact us today for more information and viewings.

Contact
Tel: 01604 946 733
Working Hours:
Mon-Fri 9am to 5.30pm
Correspondence Address:
Park Home Search
Royal House
Queenswood
Newport Pagnell Road West
Northampton
NN4 7JJ





















