Whittingham, Northumberland
Property information
Property Summary
Property Features
- Part Exchange available
- Pet friendly
- Residential development
- Two bedrooms
- Large decked area
- Over 50s
- Far reaching views
- Village location
- Modern design
- Peaceful environment
- Pre-owned park home
Full Details
THE HOME
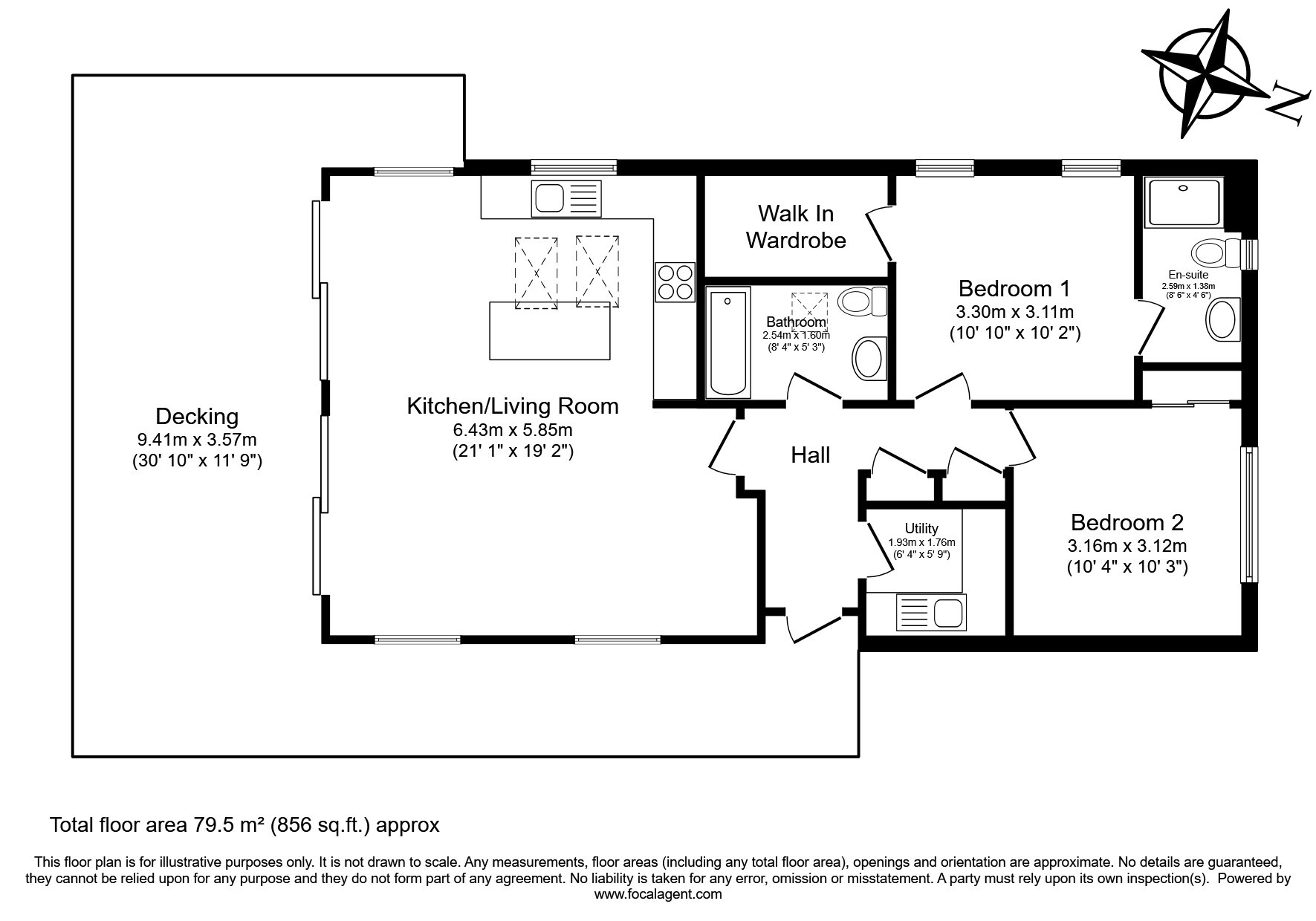
This superb Lissett Alaska (45'x22') lodge occupies an elevated position on this select development of only 12 homes. The home is located on this residential park and has a large wrap around decking with glass paneling allowing an uninterrupted views. The living room features large windows and French doors leading to the decking, and a wood burner. The kitchen has modern touches and an island, with a dining area looking out onto the decking. The master bedroom has an en suite with a walk-in shower and a walk-in wardrobe. There is a second double bedroom and a family bathroom with a bathtub.
THE PARK
This residential development consists of 12 homes and is exclusive for the over 50s. The development is pet friendly and is located in Whittingham which provides a very peaceful setting. The park home lifestyle provides community living for like-minded people, in a safe and secluded environment.
THE AREA
Glanton village is just 1.5 miles from the park and has a pub and post office. 10 minutes drive away is Alnwick which is a large town with shops, amenities and medical centre. The park is located on the edge of Northumberland National Park, where you can walk for miles and miles in one of the UK's most beautiful areas. The Northumberland coastline is also just 15 minutes drive away.
Local amenities
- Bus stop: 0.16 miles
- Shops: 2.8 miles
- Supermarket: home deliveries available
- Bowling green: 7.5 miles
- Leisure centre: 8 miles
- Golf course: 8 miles
- Fishing: 1 mile
- Beach: 13.7 miles
HOUSE TO SELL?
Hassle-free property Part-Exchange is available from recommended part-exchange specialists Quickmove Properties, with no estate agent fees, no solicitors fees and no market uncertainty.
Site fees (at time of listing): £3,422 per year
Please note that the site fee (also known as pitch fee, or ground rent) is subject to change and reviewed annually. Ground rent can only be increased in line with the Consumer Price Index. For more information, please get in touch.
Tenure: Virtual Freehold
Virtual Freehold means that when buying a park home, you purchase the physical property outright and lease the land it sits on in perpetuity, for the entirety of the time the home is sited. These properties are not mortgageable. Please consult a solicitor for further information.
NOTE: The information in this property listing is correct to the best of our knowledge. We recommend any potential purchaser is aware of all details including park rules and conditions before sale completion. We also recommend consulting the Mobile Homes Act 2013 for conditions of any future sale of this property.
Park Home Assist Insurance Services (Part Of Assist Insurance Services Ltd) are Authorised and Regulated by the FCA and Financial Conduct Authority and are one of the UK’s leading providers of Park Home Insurance. As one of the leading providers of Park Home Insurance we provide modern up-to-date policies specifically designed for Park Home Owners, yet pride ourselves on our old fashioned and traditional values where customer service and personal service comes first.
Our residential park home policies are new for old as standard, are underwritten by certain underwriters at Lloyd’s of London and back by our multi-award-winning claims and customer service department.
Our policies provide a combination of excellent comprehensive cover with some unique additional benefits, coupled with very competitive premiums and generous discounts. With numerous optional additional covers, every policy can be personalised to each policyholders personal circumstances, and therefore you only need to pay for what you need, ensuring that that the premium you pay reflects the cover you enjoy.
Request More Details or Viewing
Similar properties demo
Contact us today for more information and viewings.

Contact
Tel: 01604 946 733
Working Hours:
Mon-Fri 9am to 5.30pm
Correspondence Address:
Park Home Search
Royal House
Queenswood
Newport Pagnell Road West
Northampton
NN4 7JJ

















