Search Park Homes for Sale
Looking for your perfect park home? Apply filters to browse our current listings below.
To receive personalised updates when new homes come on the market sign up to our Park Home Register
Showing 301–312 of 780 properties
-
Make Enquiry
Make Enquiry
Please complete the form below and a member of staff will be in touch shortly.
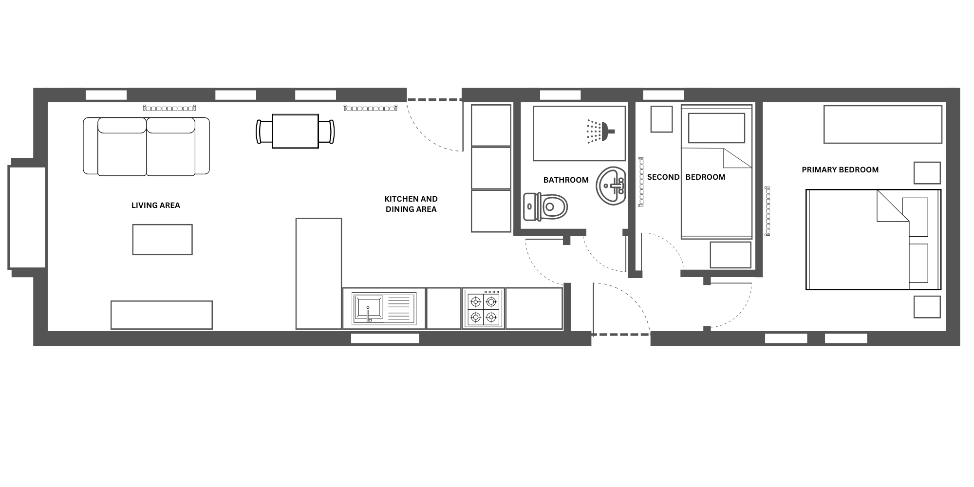
- Floorplan
- View Brochure
Contact
Tel: 01604 946 733
Working Hours:
Mon-Fri 9am to 5.30pm
Correspondence Address:
Park Home Search
Royal House
Queenswood
Newport Pagnell Road West
Northampton
NN4 7JJ
